手机:15662672636
电话:15662672636
邮箱:didihay@qq.com
地址:山东省济南市济阳县
发布时间:2024-12-28 点此:13480次
2、室外人货电梯的基础形式根据现场实际情况,1#、2#、3#确定直接安装于地下室底板上。根据现场实际情况,确定4#楼人货电梯安装于地下室顶板上(300cmC35砼)。
3、本工程为高层全现浇框架结构。建筑物抗震设防烈度为7度,设计标高±0.00相当于绝对标高:65.8m(黄海高程);地基与基础工程,采用高强预应力管桩承台及底板基础。主体结构及装修阶段施工时,垂直运输机械采用SC200/200施工升降机3台;垂直运输机计划安装时间为结构8层开始。根据施工现场的场地情况及建筑物的平面位置,确定每栋各一台施工升降机。
4安装高度:
(1)1#、2#、3#楼 人货电梯安装高度为84米;
(2)4# 楼人货电梯安装高度为72米;
二、编制依据
本工程方案编制,施工过程,及验收依据以下标准及规范:
1、本工程地质勘察报告(见工地资料);
2、SC200/200型施工升降机使用说明书;
3、《施工升降机安全规程》GB10055-2007;
4、《生产经营单位生产安全事故应急预案编制导则》GB/T 29639-2013;
5、《建设施工高处作业安全技术规程》JGJ80-91 ) ;
6、《建筑机械使用安全技术规程》JGJ 33-2012;
7、《建筑施工特种作业人员管理规定》建字【2008】75号;
8、《建筑地基基础设计规范》(JGJ94-2008);
9、《建筑起重机械安全监督管理规定》(中华人民共和国建设部令第166号);
10、《广东省实施细则》(粤建质[2011]13号);
11、《建筑施工升降机使用、拆卸安全技术规程》JGJ215-2010;
12、《建筑施工安全检查标准》JGJ59-2011;
13、《施工现场临时用电安全技术规范》JGJ46-2005;
14、《机械设备安装工程施工及验收通用规范》GB50231-2009;
三、设计概况1、所选用施工电梯的简介
1.1、SD200型施工电梯整体结构组成
(1)外笼:外笼由固定标准节的底盘和防 组成。外笼门由机械和电气锁定,除非吊笼落下来,外笼门将不会打开。如外笼门未开,吊笼将不能启动。
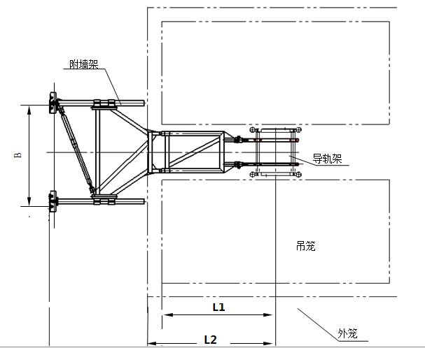
(2)标准节:每节标准节长1508mm,截面中心距一般为650*650齿条模数为8mm。多节标准节通常用M24螺栓相连接组成导轨架,通过附墙件与建筑物固定,作为吊笼上下运行的导轨。标准节可采用热浸锌处理,以提高标准节的强度和防腐性能。
(3)附墙架:沿导轨架高度,一般每隔3~10.5m安装一个附墙架。有多种型号的附墙件,可根据现场实际情况选定。
Ⅱ型附墙架的安装

Ⅱ型附墙架连接尺寸
(3)吊笼:吊笼为一种钢结构,由安装在吊笼上的滚轮沿导轨架运行。并没有进、出口门(即单、双开吊笼门),可通过调整下门轮的位置,以确保门与两导轨之间的间隙一致。吊笼上设有安全钩(亦可设电气控制)以防止吊笼从导轨架顶部脱落。在安装时,吊笼顶部可作为工作平台,由安全栏杆围住。顶上有一活板门通过配备的专用梯子,方便地攀登到顶上进行安装和维修。
(4)传动机构:由电动机、电磁制动器、弹性连轴接、蜗轮蜗杆减速机及传动齿轮等组成,传动机构弹性连接在吊笼上,通过齿轮与齿条咬合,使吊笼运行。传动机构配有变频调速系统,提高了其制动的平衡性。升降速度可以随意调控。
(5)限速器:单齿限速器由外壳、制动锥鼓、离心块、弹簧等组成。当吊笼超速时,限速器里的离心块克服弹簧拉力带动制动锥鼓旋转,与其相连的螺杆同时旋进,制动锥鼓与外壳接触逐渐增加摩擦力,确保吊笼平缓制动。
(6)对重:对重主要用于在不改变变电能消耗下增加升降机的载重量。对重由钢丝绳通过导轨架顶部的天轮系挂于吊笼顶部。升降机的进出通道不允许设在对重下方。连接对重的钢丝绳为两根。
(7)吊杆:吊杆安装在吊笼顶上,在安、拆导架时用来起吊标准节或附墙架零部件。手动吊杆上的手摇卷扬机具有制动功能,起吊重物时按顺时针方向摇动摇把,停止摇动并平缓地松开摇把后,卷扬机即可制动。放下重物时,则按相反方向摇动。
(8)电缆导向装置:用于使接入吊笼内的电缆线在吊笼运行时,不偏离电缆通道,保持在固定的位置,确保吊笼正常运行。电缆筒结构比较简单,无专门的电缆导向轨道,因而受风力影响较大,通常只用于安装高度不大或风力较小的场合。
Ⅱ型附墙架与电缆保护架电缆筒外置时安装
(9)安全电控系统:安全电控系统由电路里设置的各种安全开关及其它控制器件组成。在升降机运行时发生异常情况,将自动切断升降机电源,使吊笼停止运行,以确保升降机的安全。吊笼的单、双门上及吊笼顶部活板门上均设有安全开关,如任一门开启或未关闭,吊笼均不能运行;钢丝绳锚点处设有断绳保护开关;吊笼上、下限位开关、减速器限位开关和极限开关,当吊笼行至上、下终端站时,可自动停车,若此时因故不停车超过安全距离时,极限开关自作切断总电源,使吊笼制动。此外在限速器尾盖内设有限速保护开关,限速器动作时,通过机电连锁切断电源。
(10)超载保护器:吊笼内配置有超载保护器,当吊笼超载时,警铃报警,吊笼不能启动。
(11)楼层呼叫系统:配置楼层呼叫系统,有设置在各楼层的呼叫按钮,通过无线电发射器,将信息传递到吊笼内的解释器,当楼层有人呼叫时,吊笼内的主机有楼层提示和语音播报。
1.2、主要技术参数
备注:根据现场实际确定具体安装的施工电梯型号规格。
2、施工电梯安装2.1施工电梯平面布置
施工电梯的定位应尽量满足施工要求及避免交叉施工的影响,因此,本项目施工电梯基础位置按下图所示拟定位置布置,具体要求与详细尺寸位置在安装时根据现场实际确定。各栋施工电梯安装位置如下:
1、1#楼施工电梯安装于(1-8)~(1-12)/(1-A)轴位置,人货梯基础竖向中心线与(1-8)~(1-12)中心线重合,水平中心线距离结构外侧3.0米,人货梯基础尺寸为4米*6米。各栋施工电梯安装具体摆放位置见附图(施工人货电梯平面布置图)。
2、2#楼施工电梯安装于(2-8)~(2-12)/(2-A)轴位置,人货梯基础竖向中心线与(2-8)~(2-12)中心线重合,水平中心线距离结构外侧3.0米,人货梯基础尺寸为4米*6米。各栋施工电梯安装具体摆放位置见附图(施工人货电梯平面布置图)。
3#楼施工电梯安装于(3-8)~(3-12)/(3-A)轴位置,人货梯基础竖向中心线与(3-8)~(3-12)中心线重合,水平中心线距离结构外侧3.0米,人货梯基础尺寸为4米*6米。
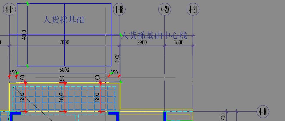
4#楼施工电梯安装于(4-15)~(4-18)/(4-M)轴位置,人货梯基础竖向中心线与(4-15)~(4-18)中心线重合,水平中心线距离结构外侧3.0米,人货梯基础尺寸为4米*6米。各栋施工电梯安装具体摆放位置见附图(施工人货电梯平面布置图)。
各栋施工电梯安装具体摆放位置见附图(施工人货电梯平面布置图)。

1#楼人货梯定位图

2#楼人货梯定位图

3#楼人货梯定位图

4#楼人货梯定位图
2.2施工电梯附着设计
(1)以3#楼为例

第1道附着: 2楼楼面 第2道附着: 5楼楼面
第3道附着: 8楼楼面 第4道附着: 11楼楼面
第5道附着: 14楼楼面 第6道附着: 17楼楼面
第7道附着: 20楼楼面 第8道附着: 23楼楼面
第9道附着: 天面
自由端高度: 6米 总高度:81米 (54节)
四、施工准备及计划1、技术准备
1)编制《施工电梯安装安全专项施工方案》;
2)项目技术负责人对管理人员及工人进行安全技术交底;
2、人员准备

技术负责人:罗春平
安全员:陈海平
电气工程师:廖肇强
安拆班长:罗锐邦
安拆班组成员:起重设备安拆工、电工、塔吊司机、塔吊指挥、司索工、汽车吊司机。
3、材料、构件计划4、 器械、设备计划
专用扳手4把、M24扳手4把、M16扳手4把、300×36扳手2把、十字螺丝刀1把、多用钳2把、0.7Kg锤2把、大锤1把、箱子40×30×30cm2个、Φ10mm钢丝绳2条,4m/条、撬钎2条、铁丝5Kg、安全帽10顶、安全带6条、灭火器2个、对讲机2部。
5、进度计划
标示内容:各栋楼的材料构件进场时间、安装时间、使用时间、拆除时间
五、施工方法1、安装工艺程序
按原厂说明书程序正常安装,流程如下:
升降机底盘安装及校平→安装外笼、吊笼→安装线缆→安装标准节至第一道附墙处 →安装第一道附墙装置→按上述4)项、5)项程序安装至使用高度→安装电缆导向装置→完善层门装置→试运转,调试升降机→组织验收并交付使用
3、安装工艺3.1、吊笼、外笼安装
1)将基础表面清扫干净。
2)用起重设备吊住吊笼上的吊点。
3)将升降机吊起就位。
4)将地脚螺栓安装好。
5)上传动升降机将吊笼就位、安装好地脚螺栓后,再安装一节标准节。
6)松动电动机上的制动器,方法是:首先拆下两个开口销,拆掉前在螺母开口处做个记号,便于复位,而后旋紧两个螺母,务必使两个螺母平行下旋,直至制动器松开可随意拨动制动盘为止。
7)用起重设备吊起传动小车。
8)从标准节上方使传动小车就位。
9)将传动小车与吊笼的连接耳板对好后,穿入销轴,并固定。
10)将制动器复位。
11)用上述安装方法安装好升降机的另半部分,将外笼另半部分用螺栓连接起来。
12)用水平仪或线坠测量导轨架的垂直度,保证导轨架的各个立管在两个相邻方向上的垂直度≤1/1500。
13)在地脚螺栓处底盘和基础间垫入不同厚度的调整钢板,用以调整导轨架的垂直度。
14)当导轨架调整到垂直时,用350N·m的力矩压紧4个地脚螺栓。
15)用同样的方法调整外笼门框的垂直度,使外笼门框的垂直度在两个相近方向≤1/1000。
16)安装好吊笼顶上的护身栏杆。
17)调整门锁。
由于运输需要,当将升降机外笼解体时,应先将外笼组装好,并调整好导轨架及门框的垂直度,然后按前述方法,将吊笼就位。
3.2、吊笼、外笼安装完毕后的调整
1)检查所有用于运输的垫木或螺栓等是否全部除掉。
2)齿轮与齿条的啮合侧隙应保证0.2-0.3mm。
3)导轮与齿条背面的间隙为0.5mm。
4)各个滚轮与标准节立管的间隙为0.5mm。
5)所有门应开关灵活。
6)安装缓冲弹簧。
3.3、限位开关和极限开关碰铁安装
升降机设有自动复位型的上、下限位开关以及非自动复位型的交流极限开关。上、下限位开关以及交流极限开关安装在吊笼安全器安装板上,位置已定。
3.4、防冲顶装置安装
在导轨架顶部靠吊笼侧,其中防冲顶装置的锥套对准导轨架立管内孔,用M24螺栓紧固。
3.5、吊杆安装
将吊杆放入吊笼顶部安装孔内,即可使用。注意安装前应加入润滑脂。
3.6、导轨架的安装
1)将标准节两端管子接头处及齿条销子处擦试干净,并加少量润滑脂;
2)打开一扇防护栏杆,将吊杆上的吊钩放下,并吊住标准节吊具;
3)用标准节吊具钩住一节标准节,带锥套的一端向下;
4)摇动手摇卷扬机,将标准节吊至吊笼顶部,并放稳;
5)关上防护栏杆,起动施工升降机。当吊笼升至接近导轨架顶部时,应点动行驶,直至吊笼顶部距导轨架顶部大约300mm时停止;
6)用吊杆吊起标准节,对准下面标准节立管和齿条上的小孔放下吊钩,用螺栓紧固;
7)松开吊钩,将吊杆转回,用300N·m的拧紧力矩紧固全部螺栓;
8)按上述方法将标准节依次安装到所需高度为止,同时安装附墙架,并检查导轨架的垂直度。安装垂直度可用经纬仪或其它检测垂直度的仪器或方法来测量,其结果必须符合下表的规定;
导轨架垂直度允许偏差
9)若利用现场的起重设备如塔吊安装导轨架,可先将4~7节标准节在地面上连成一组,然后吊上导轨架。
10)最后一道附墙架以上的导轨架悬臂长度≤7.5m。
3.7、II型附墙架安装
1)在导轨架上安装两根方管,用螺栓坚固。
2)将两根管与附墙座连接。
3)用螺栓及销子将其余部分连接起来,调节好各方向的间距,并同时校正导轨架的垂直度。
4)旋紧所有螺栓,慢慢启动升降机,确保吊笼不与附墙架相碰。
注意附墙架的最大水平倾角不得大于±8°。
3.8、电缆保护架安装
1)用起重工具将电缆卷悬挂于电缆筒上方。
2)放出约2.5m的电缆,以便把电缆接到电源箱内。
3)从电缆筒底部拉出电缆至电源箱,暂不要连接。
4)将电缆一圈一圈顺时针放入电缆筒中,尽量使每圈一样大,其直径约小于电缆筒径。
5)将电缆固定在电缆托架上。
6)将电缆接至电源箱内,起动施工升降机检查电缆是否缠绕。
7)在导轨架加高的过程中要同时安装电缆保护架。
8)调整电缆保护架以及电缆托架的位置,确保电缆在护架"U"形中心。
9)电缆筒外置时的安装:电缆筒外置时,II型附墙架与电缆保护架,以及吊笼与挑线架的连接情况如下图。
Ⅱ型附墙架与电缆保护架电缆筒外置时安装
3.9、层门安装
各停车站应设置门或停层栏杆,并与吊笼电气或机械联锁。
3.10 、验收
上述所有工作完成后,由生产经理组织施工电梯安装单位、施工单位、监理单位进行验收,验收合格后。报请当地安全生产监测中心对本机检测,经检测合格后才可以交付项目使用。
4、特殊情况说明
(1)鉴于本工程电梯安装高度,为增加电梯导轨架的稳定性,采取电梯底部安装20m加强节的技术措施。
(2)遇有特殊情况应向有关人员报告,确定新方案后,严格按新方案执行,不得擅自蛮干。
六、安全保证措施1、安装拆除措施
1.1、安装措施
1)安装前须认真学习施工电梯使用说明书,严格执行安全技术操作规程。
2)安装前组织安装人员进行安装安全技术交底,明确各安装人员的工作内容及职责。
3)安装人员戴好安全帽,在高空作业时应正确使用安全带,做到一切行动听指挥,作业人员必须持证上岗。
4)安装现场应安排人员进行警戒,拉警戒线,非安装人员不得进入。
5)级以上大风、大雨、大雾等恶劣气候,严禁进行安装作业。
6)安全员安排现场安全防护,监督整个安装作业,制止违章行为。
7)严格保管好工具、螺栓,作业期间应注意工具、螺栓的放置,以防高空坠落。
8)在安装过程中,应注意各构件完好无损。
9)施工电梯安装完毕后,必须对各机械部位及电气等各方面进行全面的调试检查。
10)检查导轨架、附墙、限位挡板和挡块安装应正确,符合要求。
11)整个架体安装完成后,应进行静、动载试验,试验结果应符合设计标准要求。
12)电气接线应正确,各安全限位开关、制动器灵敏可靠。
13)各方面检查调试正常自检合格后,应报请湖南省检测中心检测,检查合格后,
14)操作人员在开机前,先检查各安全门、卸料平台防护门的情况,确认完好、可靠安全后,方可启动,严禁设备带病工作、超载运行。
2、安全使用及监督措施
认真贯彻执行"安全第一,预防为主"的安全生产方针,树立"以人为本,安全第一"、"责任重于泰山"的安全生产意识。项目部相关部门要加强安全生产的管理,狠抓项目部制定的各项安全管理制度的落实,符合国家的安全法律、法规的要求,加强平时的监督检查,及时排除隐患,做到"防范胜于救灾"。
(1)项目部加强重要危险源的管理,根据起重机械施工作业的特点,从机械进场到出场的各个阶段,要求班组每日一次检查、项目部每月一次检查,实施设备使用全过程的管理。
(2)项目部委派主管安全的副经理每月定期组织一次安全大检查,以及针对工程特点进行不定期的检查。
(3)完善预防和预警机制,加强紧急抢险救援组织机构和队伍建设,制定并落实相应的应急工作预案。
(4)做好购齐必要的应急救援物资准备,如药箱、绷带、一般急救药品、温度计、手术剪等。常用工具如扳手、钢钎、大锤、铁锹、手电筒等。做好工具维护、保养,保证正常使用。
(5)项目部建立安全值班制度,设值班电话并保证24小时轮流值班。按照早发现、早报告、早处置的原则,项目指挥部接到应急事件报告后应立即奔赴现场,指挥、协助现场急救工作。确保应急处理工作高效、有序地进行,使突发事件得到控制或终止,最大限度地减轻事件所造成的灾害。
(6)在项目部范围内广泛开展进行自救知识技能宣传和培训,自救知识培训包括处理简单外伤、轻微中毒及骨折固定、止血等力所能及的有效的救援技能。以便现场发生安全生产事故,项目部快速组织抢救的同时,受伤者或附近人员能尽力组织自救,现场人员保持头脑清醒,在第一时间施救,待项目部抢救小组到达后提供及时、详细、准确的伤亡信息及救援措施,避免造成更大的经济、人员损失。
(7)抢救结束后由指挥长指派有关人员组成事故调查组,在指挥长的领导下工作。做媒伤亡经济损失的统计,上报上级有关部门调查、处理。写出事故报告,汲取事故教训,及时进行整改,并对责任人给予责任追究。
七、应急预案
为贯彻落实"安全第一、预防为主"的方针,加强起重设备装拆安全的监督管理,预防和减少起重设备装拆安全方面可能出现的紧急情况,以及对可能出现的紧急情况进行有效控制,针对紧急情况做出快速响应,依据公司《生产安全防控和应急预案》,针对工程现场装拆工作的具体情况,特制定本预案。
1、应急组织机构及职责
1.1、应急指挥机构
××项目应急指挥中心(指挥部),领导本企业对突发事件的应急处理和生产安全防控工作。
相关推荐
